みなさんごきげんよう。
「3度の飯より部屋探しが好き!」
でおなじみのハウスコムFC梅田町店です。
「FOREST FUKUSHIMA」について
本日は大人気エリア福島区にある野田駅まで徒歩5分!
駅近の広々1LDK!!
大人気エリアの1LDKでこの家賃帯は希少です☆

「FOREST FUKUSHIMA」の物件概要
| 所在地 | 大阪府大阪市福島区吉野4丁目6-7 |
|---|---|
| 最寄駅 | JR大阪環状線/野田駅 徒歩5分 Osaka Metro千日前線/玉川駅 徒歩6分 阪神本線野田駅 徒歩10分 |
| 築年数 | 2023/05 |
| 間取り | 1LDK |
| 構造 | 鉄骨造 |
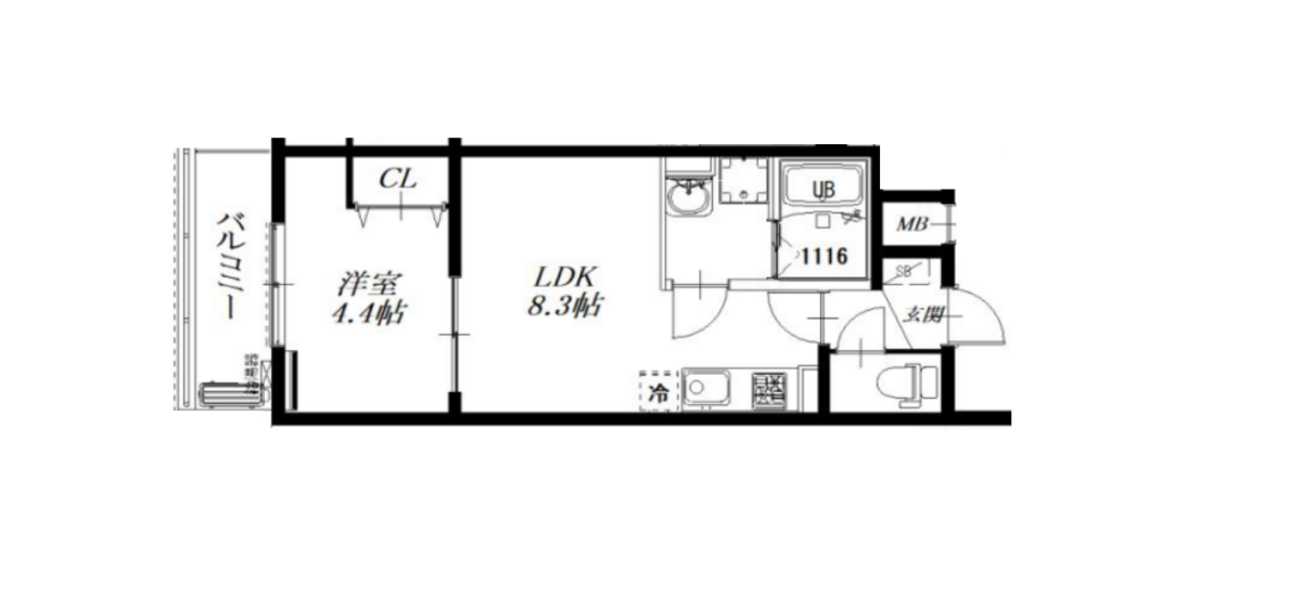
「FOREST FUKUSHIMAの室内詳細
間取り

お部屋の広さは30.02 m2としっかりとした広さのあるお部屋です。
リビング8.3帖、洋室4.4帖と広く使えます!!
築浅の為、設備も新しくお部屋も綺麗です☆
二人入居可 / システムキッチン / 給湯 / 洗髪洗面化粧台 / CATV / CSアンテナ / BSアンテナ / 宅配ボックス / 角部屋 / 温水洗浄便座 / 浴室乾燥機 / 独立洗面台 / 防犯カメラ / クローゼット / シューズボックス / ガス(都市) / バス・トイレ別 / シャワー / コンロ種別(ガス) / コンロ口数(二口) / エアコン / 室内洗濯機置き場 / オートロック / バルコニー / フローリング / internet対応(光ファイバー) / TVドアホン / ごみ出し24時間OK / インターネット利用料無料 / カード決済(初期費用) / 最上階 / 礼金なし / 敷金なし
※設備をクリック頂くと設備で条件を絞ることが可能です
洋室

洋室は4.4帖ございます。
大きなクローゼットがあり、広く最高な寝室になります。
バルコニーにも行けるため、服の取り入れなどもラクラクです!!!
キッチン

システムキッチンはカウンターキッチンになっていて、ガスコンロ対応の2口となっております。
調理スペースもしっかり確保されているのは、嬉しい条件になっております!!
広々としたキッチンでお料理しちゃいましょう☆
バスルーム

浴室、浴槽共に広く快適に入ることができます
シャンプー等も置ける棚もありますので、嬉しいポイントですよね☆
更に、浴室乾燥機付いており、設備の面でも文句なしです!!
脱衣所

脱衣所には独立洗面台がございます!
独立洗面台で、洗濯機置き場もございます。
広ーーい脱衣所で快適です⤴
シューズボックス

シューズボックスは収納力もばっちり!
上にはちょっとした写真や、鍵置場などのスペースが作れそうですね☆
思い出など飾っちゃいましょう⤴
収納

収納スペースはしっかりとした広さのクローゼットが完備!!
ハンガーラックも付いているのが嬉しい⤴
好きなお洋服をいっぱい掛けてください!!!
「FOREST FUKUSHIMA」のおすすめポイント
こんな条件でお探しの方にオススメ
住みたい条件
その他の条件
お部屋探しでお困りの方へ
ハウスコムFC梅田店では大阪市内全域はもちろん、大阪梅田を中心に中崎町、中津、天六、南森町など北区の物件や福島区の物件などをメインにご紹介させていただいております。 新築の物件やペット可能な物件などお客様のご要望に合わせて幅広く物件を取り扱っております。 大阪市で賃貸物件をお探しの方は是非ハウスコムFC梅田店へお問い合わせください。