みなさんごきげんよう。
「3度の飯より部屋探しが好き!」
でおなじみのハウスコムFC梅田町店です。
「S-RESIDENCE天満Gracis」

本日は北区にある天満駅まで徒歩7分! 駅近の1K物件!!
広い洋室の単身向けのお部屋のご紹介です☆
「S-RESIDENCE天満Gracis」の物件概要
| 所在地 | 大阪府大阪市北区天満橋3丁目5-32 |
|---|---|
| 最寄駅 | JR大阪環状線/天満駅 徒歩7分 Osaka Metro堺筋線/扇町駅 徒歩9分 Osaka Metro堺筋線天神橋筋六丁目駅 徒歩13分 |
| 築年数 | 2021/09 |
| 間取り | 1K |
| 構造 | 鉄筋コンクリート |
「S-RESIDENCE天満Gracis」の室内詳細
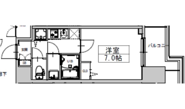
間取り

24.37 m2の間取りは1Kとなっており、洋室は7帖のお部屋では、広くなっております。
落ち着きのある配色のお部屋で住み心地抜群となっております。
バストイレ別で、リビングも家具のレイアウトがしやすい間取りになっております。
システムキッチン / 給湯 / 洗髪洗面化粧台 / CATV / CSアンテナ / BSアンテナ / 宅配ボックス / 駐輪場 / バイク置き場 / 温水洗浄便座 / 浴室乾燥機 / 独立洗面台 / 防犯カメラ / クローゼット / シューズボックス / ペット不可 / ガス(都市) / バス・トイレ別 / シャワー / コンロ種別(ガス) / コンロ口数(二口) / エアコン / 室内洗濯機置き場 / オートロック / エレベータ / バルコニー / フローリング / internet対応(光ファイバー) / TVドアホン / ごみ出し24時間OK / インターネット利用料無料 / カード決済(初期費用) / 礼金なし / 敷金なし
※設備をクリック頂くと設備で条件を絞ることが可能です
洋室

洋室は7帖になります。
白基調のフローリングがお部屋を映えさせております。
キッチン

システムキッチンは、ガスコンロ対応のコンロ2口が付いております!
収納スペースもしっかりございますので、調理道具も収納可能です☆
隣には冷蔵庫置き場もありますので、お料理もしやすいです!!
バスルーム

浴室乾燥機が付いていて設備面もばっちり!
浴室、浴槽共に広く快適な空間です⤴
シャンプー等の置き場もございますので、便利です☆
更には、アクセントクロスがオシャレですよね☆
洗面台

脱衣所には独立洗面台がございます!
綺麗な洗面台があるのは必須条件ではないでしょうか。
収納もあるので買い溜めして置いておけます☆
シューズボックス

高さを変えれるのでブーツなども入るので嬉しいです☆
収納力抜群のシューズボックスは助かりますよね!!
大切な靴を並べたくなりますね⤴
収納

収納スペースはクローゼットが完備!!
洋服をかけるポールもあり、棚の上には物も置けます!!
「S-RESIDENCE天満Gracis」のおすすめポイント
こんな条件でお探しの方にオススメ
住みたい条件
その他の条件
お部屋探しでお困りの方へ
ハウスコムFC梅田店では大阪市内全域はもちろん、大阪梅田を中心に中崎町、中津、天六、南森町など北区の物件や福島区の物件などをメインにご紹介させていただいております。 新築の物件やペット可能な物件などお客様のご要望に合わせて幅広く物件を取り扱っております。 大阪市で賃貸物件をお探しの方は是非ハウスコムFC梅田店へお問い合わせください。
