みなさんごきげんよう。
「3度の飯より部屋探しが好き!」
でおなじみのハウスコムFC梅田町店です。
「 プレジオ天神橋ASIAN」

本日は北区にある天満駅まで徒歩7分!
築浅の大人気エリアそびえ立つ1Kのお部屋になります。
白基調の大人気シリーズのお部屋のご紹介です!!
「 プレジオ天神橋ASIAN」の物件概要
| 所在地 | 大阪府大阪市北区本庄東3丁目5-7 |
|---|---|
| 最寄駅 | Osaka Metro谷町線/天神橋筋六丁目駅 徒歩15分 阪急千里線/天神橋筋六丁目駅 徒歩15分 Osaka Metro堺筋線天神橋筋六丁目駅 徒歩15分 |
| 築年数 | 2023/12 |
| 間取り | 1LDK |
| 構造 | 鉄筋コンクリート |
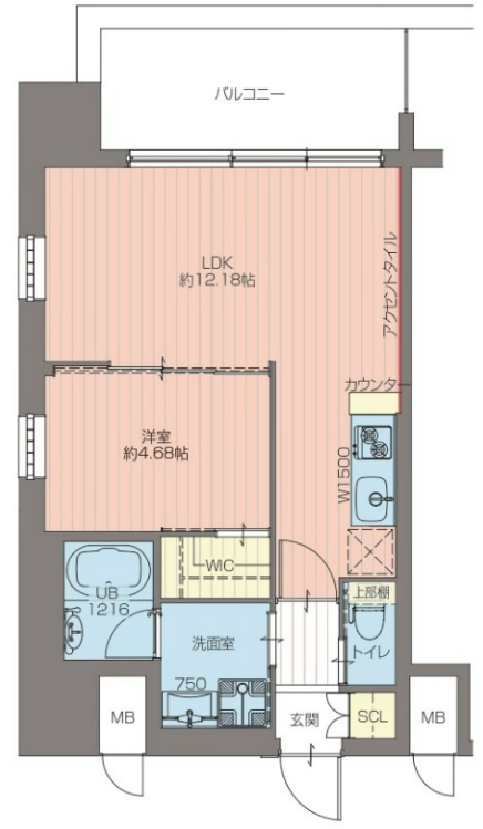
「 プレジオ天神橋ASIAN」の室内詳細
間取り

40.80 m2間取りは1LDKとなっており、LDKは12.18帖と洋室は4.68帖のお部屋になります。
広すぎるほどのリビングが特徴です!!
全てが理想的なお部屋となっております!!
二人入居可 / システムキッチン / 給湯 / 追い焚き / W.INクローゼット / CATV / CSアンテナ / BSアンテナ / 出窓 / 宅配ボックス / 駐輪場 / バイク置き場 / 角部屋 / 温水洗浄便座 / 浴室乾燥機 / 独立洗面台 / 浴室TV / 防犯カメラ / シューズインクローゼット / 照明器具付き / ペット対応 / ガス(都市) / バス・トイレ別 / シャワー / コンロ種別(ガス) / コンロ口数(二口) / エアコン / 室内洗濯機置き場 / オートロック / エレベータ / バルコニー / フローリング / internet対応(光ファイバー) / TVドアホン / ごみ出し24時間OK / インターネット利用料無料 / カード決済(初期費用) / 礼金なし / 敷金なし
※設備をクリック頂くと設備で条件を絞ることが可能です
洋室

洋室は4.68帖になります。
大きいベットも置けるほど広いです☆
窓もあり朝は目覚めが良くなりそうですね!!
キッチン

システムキッチンは、ガス対応のコンロ2口が付いております!
調理スペースが確保されている理想的なキッチンとなっております!!
収納もしっかりございますので、調理道具もいっぱい置けます!!
バスルーム

浴室乾燥機はしっかり完備!!
プレジオシリーズならではのお風呂にテレビがございます!!!
浴室、浴槽ともにかなり広くゆったりできそうです。
棚も付いているのでシャンプーの置き場には困りませんね!!
最高な条件のお風呂となっております★
洗面台

脱衣所には独立洗面台がございます!
三面鏡の綺麗な洗面台は男女共に嬉しい条件です!!!
収納

収納スペースはウォークインクローゼットが完備!!
上の段にも物が置けて便利です☆
服をかけるポールもございます!!
広いクローゼットは嬉しいですよね!!
「 プレジオ天神橋ASIAN」のおすすめポイント
こんな条件でお探しの方にオススメ
住みたい条件
その他の条件
お部屋探しでお困りの方へ
ハウスコムFC梅田店では大阪市内全域はもちろん、大阪梅田を中心に中崎町、中津、天六、南森町など北区の物件や福島区の物件などをメインにご紹介させていただいております。 新築の物件やペット可能な物件などお客様のご要望に合わせて幅広く物件を取り扱っております。 大阪市で賃貸物件をお探しの方は是非ハウスコムFC梅田店へお問い合わせください。
